
INVERNESS MEDICAL PLAZA AVAILABLE FOR SALE
Property Images
For Sale
Location: Mesa, AZ
Property Highlights
- Suite 102 is ±3,292 SF ( Parcel # 140-68-108) -Tenant is Sonoran MRI
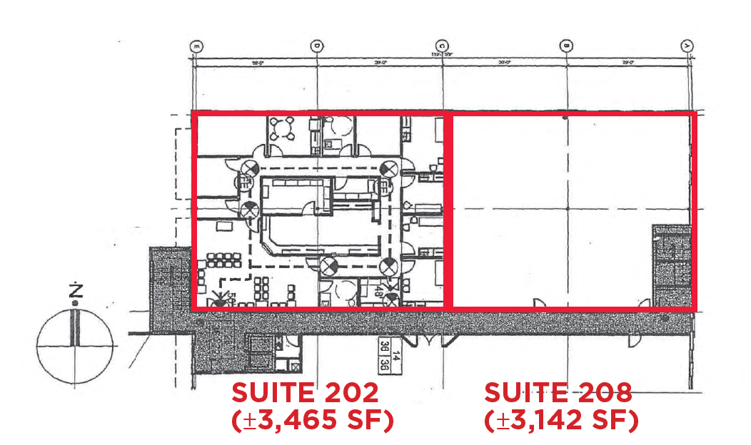
- Suite 202 is ±3,465 SF (Parcel # 140-68-111) – Tenant is The Pain Experts
- Suite 208 is ±3,142 SF ( Parcel # 140-68-145) – Tenant is Desert Spine and Scoliosis
- Investors will benefit from stable, in-place NOI
- 1.5 miles from Banner Gateway Medical Center
- Easy access to patients, located off of the US-60 and Greenfield
- Located directly on the campus of Arizona Spine and Joint Hospital
- Sold together or separately
- Call for pricing + details on tenants
